Квартира в ЖК "Суворовский г. Тула

«Мятное настроение» (78 м.кв.)

Мы создали уютный дизайн интерьера квартиры для семьи. Цветовую гамму, в которой глаз отдыхает от городской суеты, применив в качестве базового бежевый и светло-серый цвета стен. Свежести пространству придает бирюза и мята, и синий – она в декорах и в некоторых фрагментах стен.

Такая колористика придает всему интерьеру свежести, способствует расслаблению и гармонии. Жилое пространство от кухни отделяет стеклянная перегородка.

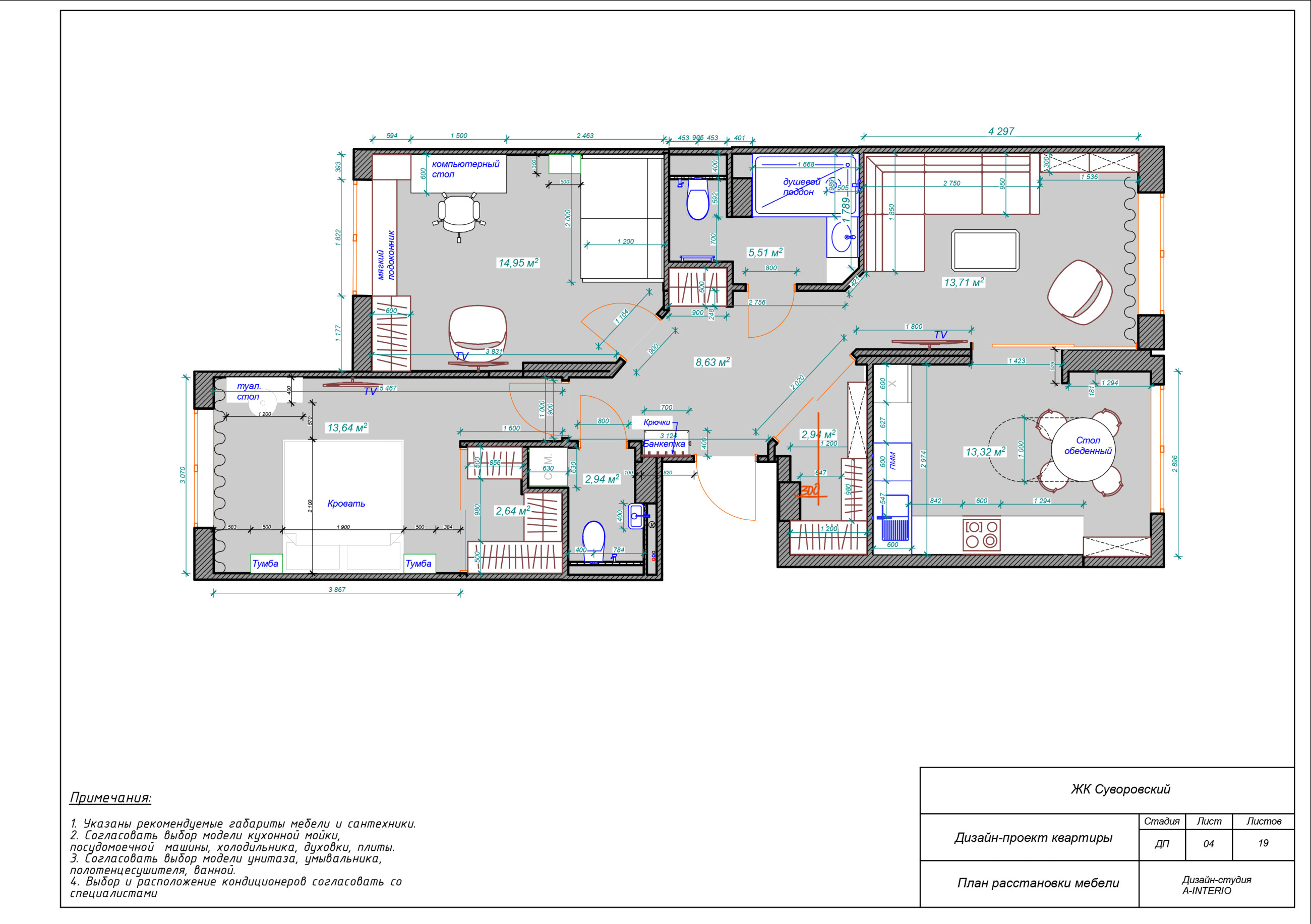
В планировочном решении нам удалось решить все основные запросы заказчиков – функционал был создан с учетом эргономики. Так же планировочное решение было изменено, и получилось оригинальным. Кроме того, с помощью декора и освещения удалось визуально расширить пространство и создать ощущение открытости и движения воздуха. При этом были использованы разные сценарии освещения, и основные по зонам, и декоративные, добавляющие уюта в вечернее время.

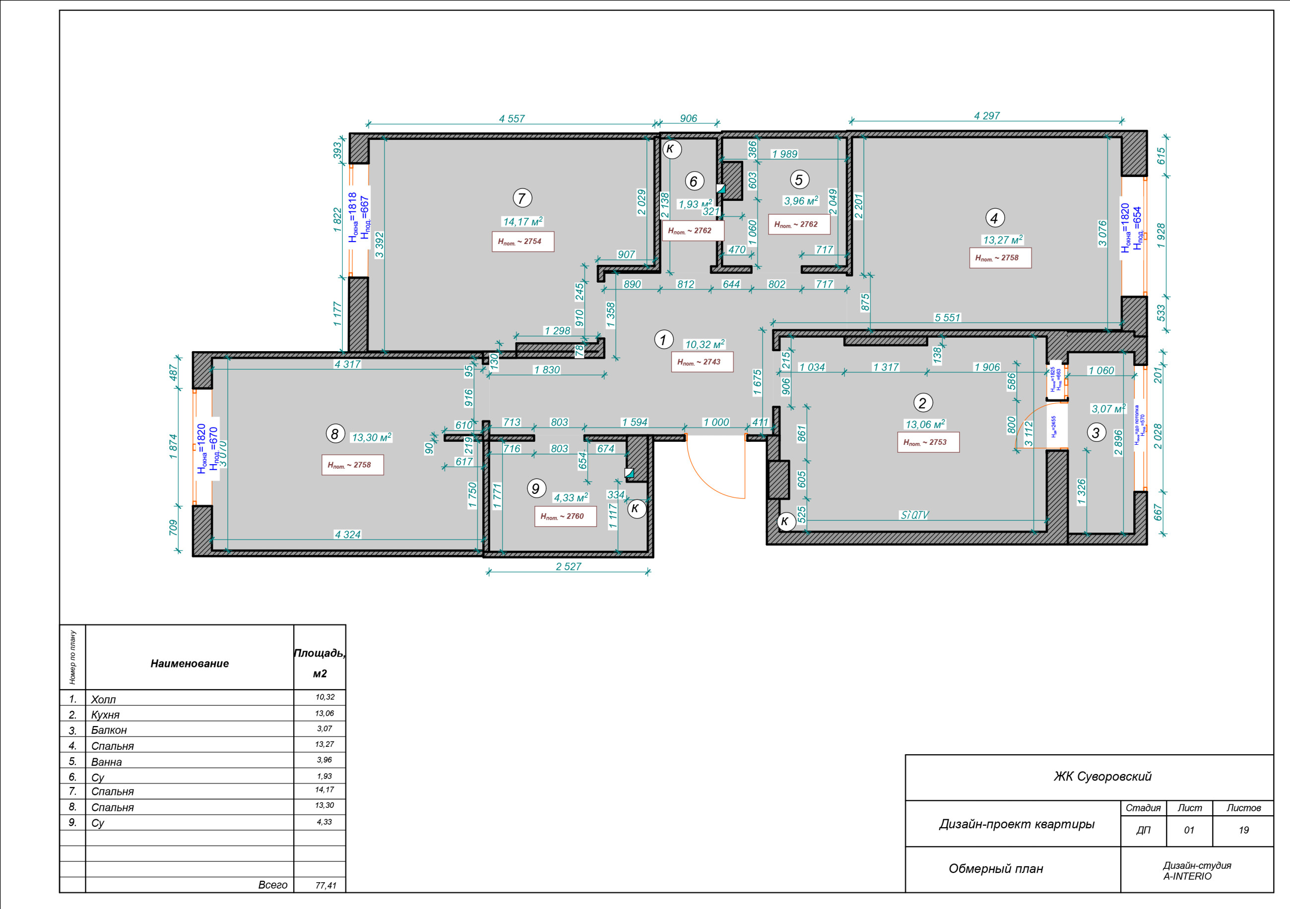
Исходная планировка

Планировочное решение

Планировочное решение

Исходная планировка

           Визуализация

Записей не найдено.

До и после

Записей не найдено.

Вам может понравится

Американская классика
"Американская классика"(320 м.кв.)

Коттедж п.Басово-Прудное, г.Тула, 1-й эт.

Modern
"Для мамы" (42 м.кв.)

Квартира по ул.Фрунзе, г.Тула,

Loft
"Квартира а-ля Лофт" (96 м.кв.)

Квартира по ул. Вересаева 10-а, г.Тула