Квартира г.Тула, ул. Фрунзе, д.7

"Гостеприимная классика" (72 м.кв.)

Дизайн этой квартиры был создан для прекрасной дамы, бизнес-леди. Планировка квартиры представляла собой однокомнатную с кухней, но площадь ее совсем не маленькая - 70 м.2.

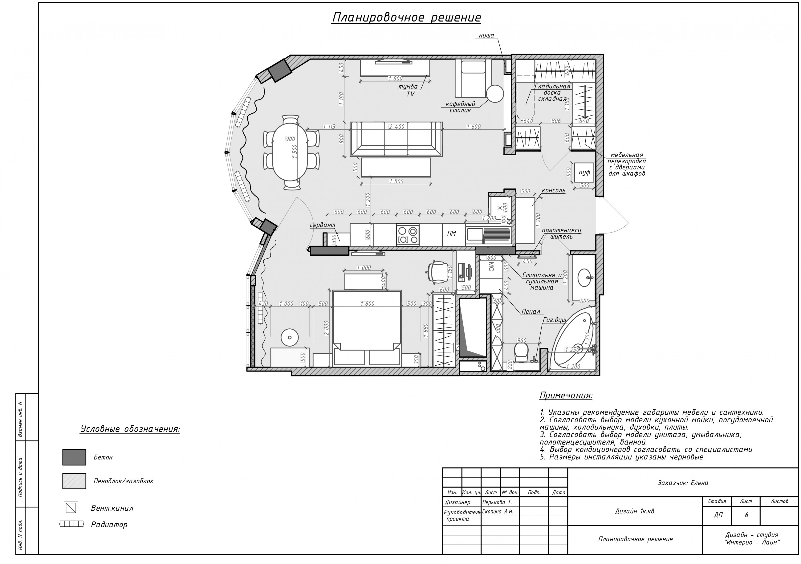
   Мы перепланировали ее рационально, воспользовавшись всей площадью. На место кухни мы поставили спальню (согласовав, конечно, с застройщиком), а в общей площади устроили большую гостиную-кухню-столовую. При всем при этом у нас появилось многофункциональная просторная ванная. А при входе в квартиру - холл с зеркальной стеной, дважды увеличивающей пространство. За этой стеной находится гардеробная с хозблоком и гладильной доской. Там есть все что необходимо. Лоджию мы присоединили к спальне, тем самым прилично ее увеличили в размерах.

Исходная планировка

Планировочное решение

Планировочное решение

Исходная планировка

Реализация

Дизайн квартиры показан как в эскизах, так и на фото - реализации.

Визуализация проекта

Записей не найдено.

До и после

Записей не найдено.

Вам может понравится

"Респектабельный лофт" ч.2 (280 м.кв.)

Частный дом, г. Тула, ул. Рабочего полка

Art Deko
«С золотыми акцентами" (127 м.кв.)

Квартира в ЖК "Вишневый сад" , г.Тула,

Дизайн гостиной
"На контрасте" (95 м.кв)

Квартира по ул. Проспект Ленина 112 б