Частный дом, г. Тула, ул.Рабочего полка

"Респектабельный лофт" ч.1 (280 м.кв.)

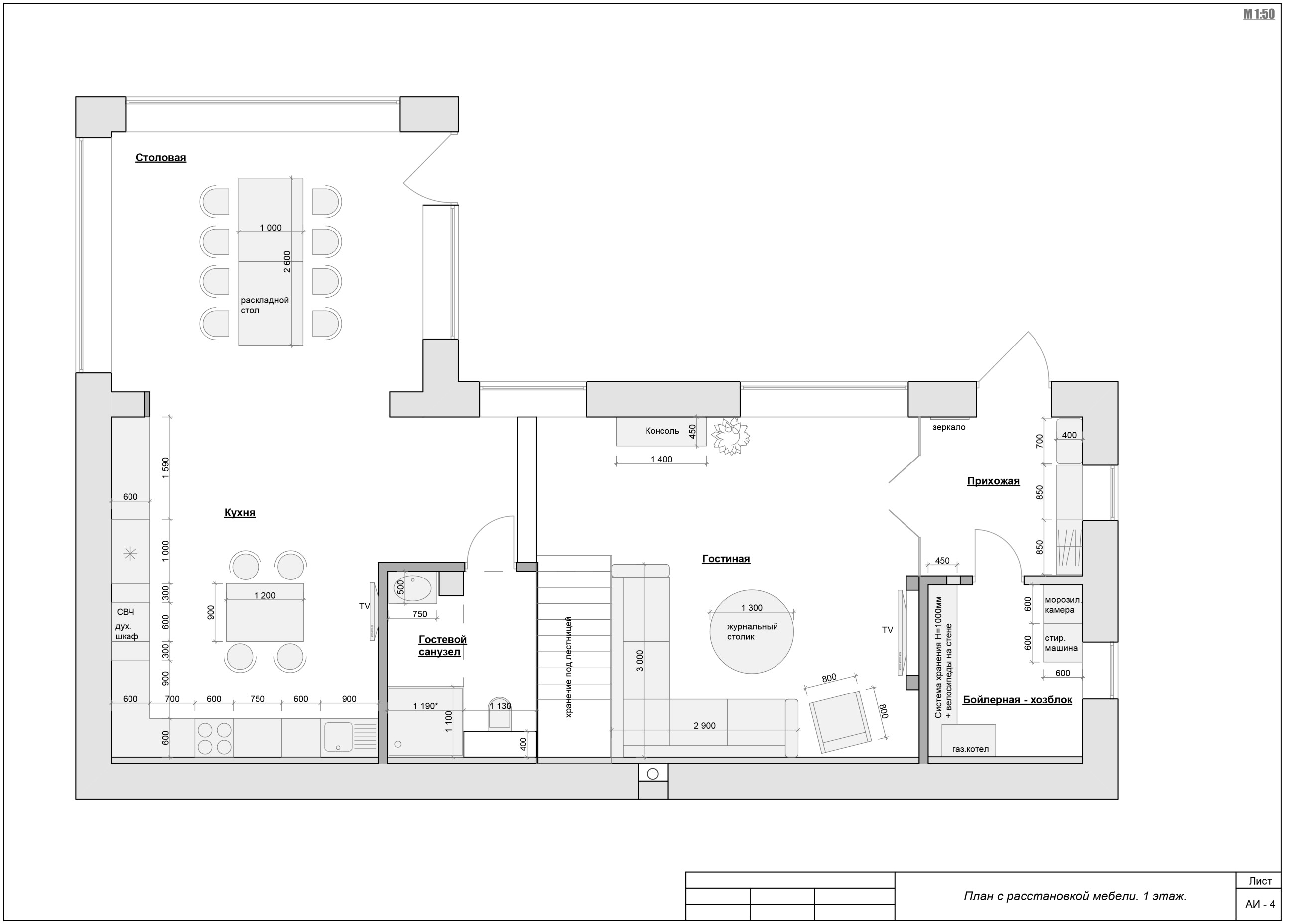
1й этаж этого дома представляет собой открытое обьединенное пространство с высокими потолками, состоящее из холла-прихожей, гостиной, кухни и столовой зоны в остекленном помещении, санузла, лестницы.

Кухня выполнена по индивидуальному эскизу и очень многофункциональна. Она имеет открытый остров, интегрированные шкафы с разнообразным наполнением и фасадами.
Напротив кухни стена с ТВ и возможностью рисования.
Но основная фишка помещения - в полностью остекленной столовой зоне- высокие окна выходят своим видом на красивый участок и имеют функциональные каменные подоконники - как дополнительное место для большой кампании.

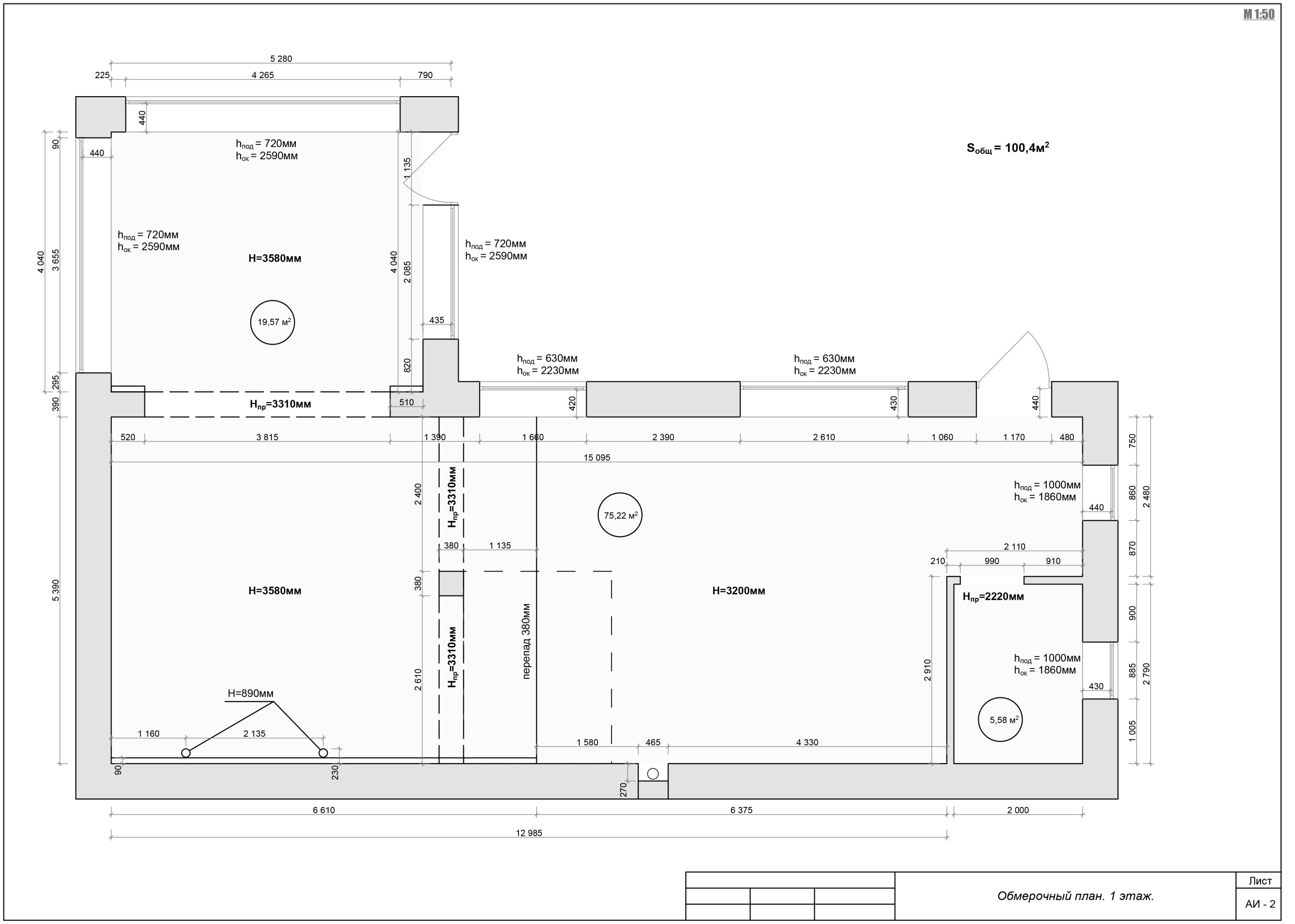
Исходная планировка

Планировочное решение

Планировочное решение

Исходная планировка

Записей не найдено.

До и после

Записей не найдено.

Вам может понравится

"Просторный и стильный" ч.1 (193,2 м2)

Частный дом пос. "Капитан Клаб", пос. Рождествено

"Респектабельный лофт" ч.1 (280 м.кв.)

Частный дом, г. Тула, ул.Рабочего полка

Eklektika
"Черно-белая сюита" (127 м.кв.)

Квартира по ул.Рабочего Полка, г.Тула